APPARTEMENT T1 A LOUER - LYON 9EME ARRONDISSEMENT - 31.95 m2 - 690 € charges comprises par mois
T1 Bis - 31,95m²
T1 Bis de 31,95 m², situé au 5e étage sur le quai Hippolyte Jaÿr dans le 9e arrondissement de Lyon.
L'appartement offre une entrée avec une cuisine aménagée (équipée d'une plaque induction, d'un réfrigérateur encastré et de meubles hauts et bas), une chambre séparée avec meuble dressing, une salle de bains (machine à laver) et des WC + une cave (n°29) en sous-sol.
Le chauffage et l'eau chaude sont individuels au gaz (entretien annuel de la chaudière à la charge du locataire, réalisé le 14/10/2025).
Les charges sont provisionnées à 15 €/mois avec régularisation annuelle.
Localisation : à proximité des transports (bus, métro, gare), des commerces et du centre-ville.
Disponibilité à partir du 4 novembre 2025
Conditions : loyer hors charges 675 €/mois (complément de loyer 77,53 €) + 15€ de charges = loyer charges comprises 690 € CC ;
dépôt de garantie 675 € ;
frais d'honoraires locataire 319,50 € (dossier) + 95,85 € (état des lieux). Dépenses énergétiques estimées : 840 à 1 170 €/an (référence 2023).
Pour visiter ce logement, merci de déposer un dossier sur le lien ci-joint : https://climmo.candidature-location.com/enter/182
Logement à consommation énergétique excessive : classe F.
Les informations sur les risques auxquels ce bien est exposé sont disponibles sur le site Géorisques : www.georisques.gouv.fr
Réf : 182
Disponibilité
04/11/2025
Adresse
21 QUAI HIPPOLYTE JAYR, LYON 9EME ARRONDISSEMENT
Caractéristiques
Aménagements
- construit en : 1948
- surface utile : 41.85 m2 env.
- cuisine : amenagee
- chauffage : individuel gaz
Informations financières
- loyer mensuel charges comprises : 690 €
- dont provision mensuelle des charges locatives : 15 € (régularisation annuelle)
- et complément de loyer : 77,53 €
- dépôt de garantie : 675 €
- honoraires charge locataire TTC : 319,50 €
- dont pour l'état des lieux : 95,85 €
Zone soumise à encadrement des loyers
- loyer de référence majoré (loyer de base à ne pas dépasser) : 597,47 €
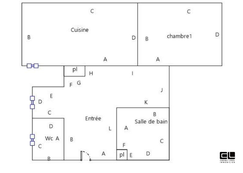
Quelques surfaces plus en détail
Surfaces données à titre indicatif – Non contractuelles :
- Entree : 5.7 m2
- Cuisine : 13.1 m2
- Wc : 1 m2
- Chambre 1 : 8.9 m2
- Salle de bains : 3.3 m2
- Grenier : utile : 9.9 m2
Voir quelques surfaces plus en détailImprimer la ficheVoir nos prestations et tarifs
Classe énergie et classe climat
dont émissions de Gaz à effet de serre
En savoir plus
Classe énergie et classe climat
Montant estimé des dépenses annuelles d'énergie
Les dépenses d'énergie sont estimées entre 840 € et 1 170 € par an selon l'année de référence 2023.
Estimation de dépenses en fonction du logement et pour une utilisation standard sur 5 usages (chauffage, eau chaude sanitaire, climatisation, éclairage, auxiliaires).
L'agence
CABINET LEROY IMMOBILIER
23 QUAI JAYR
69009 LYON 9EME ARRONDISSEMENT
Tél : 0472291191
Votre conseiller pour visiter ce bien
Aurélie LEROY
Tél : 04.72.29.11.91
Tél mobile : 06 10 57 51 58
Contactez-nous via ce formulaire ou appelez-nous pour visiter ce bien
Ecoles, transports, sorties et commerces sur LYON 9EME ARRONDISSEMENT (69009)
Adresse 21 QUAI HIPPOLYTE JAYR, LYON 9EME ARRONDISSEMENT
Lyon 9eme Arrondissement est une ville de 52 903 habitants. Côté immobilier, les habitations sont réparties en 4 % de maisons et 96 % d'appartements.



