Appartement à louer Secteur Autres départements
Vous cherchez un studio pour votre enfant ou encore un appartement pour votre famille dans un quartier calme, notre agence saura vous proposer le bien qu'il vous faut. CABINET LEROY IMMOBILIER met à disposition un large choix d'appartements et de studios à louer sur le secteur Autres Départements, pour des loyers compétitifs charges comprises. L'équipe de CABINET LEROY IMMOBILIER se tient à votre disposition pour vous accompagner.
Il y a peu de résultats pour votre recherche. Pour obtenir plus de résultats, veuillez modifier vos critères de recherche :
APPARTEMENT T2 A LOUER ROANNE
34.6 m2
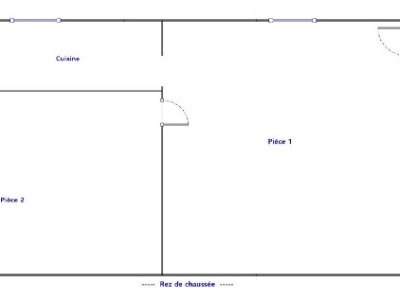
TYPE 2 - 34,6 m² - 395 € CC - ROANNE T2 situé au rez-de-chaussée de 34,6 m² comprenant un séjour (15,48 m²), une chambre de 11,08 m², une salle d'eau et WC. Chauffage et eau chaude avec chaudière gaz individuelle. Loyer 395€ CC dont charges mensuelles s'élèvent à 30 € ...
APPARTEMENT T3 A LOUER ROANNE
44.3 m2
CENTRE ROANNE 74/76 RUE ELISEE RECLUS DANS UN IMMEUBLE AGREABLE ET FAMILIAL /T3 appartement (en RDC sur cour fermée) APPARTEMENT orientation Est sur cour et Sud sur rue rénové T3 Très bien agencé de 44,30m2 comprenant une pièce de vie avec coin cuisine aménagé avec un ...


