APPARTEMENT T4 - OULLINS - 90.57 m2 - VENDU
CENTRE OULLINS T4 DE 92M² AVEC 3 BALCON
CENTRE OULLINS APPARTEMENTS 4 Pièces de 92m² et 3 balcons au 3ème étage d'un immeuble récent.
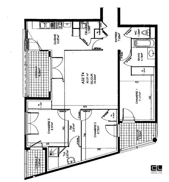
Bel appartement composé : d'un grand hall d'entrée avec rangement de 8 m² et un wc , d'un grand séjour de 25m² et d'une cuisine équipée avec buanderie de 13m² ( possibilité d'ouvrir la cuisine ) avec baies vitrés donnant sur terrasse de 7m² exposition EST , une suite parentale de 12m² avec une grande salle d'eau de 5m² ( parquet et rangement ) donnant sur un balcon , un coin nuit bien séparé avec 2 chambres ( rangements et parquet ) avec une salle d'eau/WC et balcon .
L'appartement est équipée d'une climatisation.
possibilité achat d'un garage sécurisé de 22m² en sous sol en sus du prix 20 000€HAI
proximité immédiate métro écoles commerces et transports
immeuble en copropriété 39 Lots principaux ( immeuble 103 lots )
Charges annuelles 1750 euros / AN
Aurélie LEROY 06.10.57.51.58
Les informations sur les risques auxquels ce bien est exposé sont disponibles sur le site Géorisques : www.georisques.gouv.fr
Les informations sur les risques auxquels ce bien est exposé sont disponibles sur le site Géorisques : www.georisques.gouv.fr
Réf : 15
Caractéristiques
Aménagements
- construit en : 2005
- cuisine : amenagee
- chauffage : individuel gaz
- climatisation : oui
Copropriété
- soumis au statut de la copropriété : oui
- copropriété : 103 lots
- montant moyen annuel des charges courantes : 1 750 €/an soit 145,83 €/mois
- procédure en cours : non
Quelques surfaces plus en détail
Surfaces données à titre indicatif – Non contractuelles :
- Entree : 7.6 m2
- Wc : 1.3 m2
- Chambre 1 : 12.6 m2
- Salle d'eau : 4.2 m2
- Sejour : 24.9 m2
- Balcon : 6.8 m2
- Degagement : 2.9 m2
- Chambre 2 : 10.6 m2
- Balcon : 4.9 m2
- Chambre 3 : 10.2 m2
- Balcon : 3.1 m2
- Cuisine : 10.7 m2
- Cellier : 1.8 m2
Voir quelques surfaces plus en détailVoir nos prestations et tarifs
Classe énergie et classe climat
dont émissions de Gaz à effet de serre
En savoir plus
Classe énergie et classe climat
Connexion internet
| | Fibre plus de 1 Gbit/s Câble de 100 Mbit/s à 1 Gbit/s |
Données en provenance de l'Arcep
Montant estimé des dépenses annuelles d'énergie
Les dépenses d'énergie sont estimées entre 880 € et 1 230 € par an selon l'année de référence 2024.
Estimation de dépenses en fonction du logement et pour une utilisation standard sur 5 usages (chauffage, eau chaude sanitaire, climatisation, éclairage, auxiliaires).
L'agence
CABINET LEROY IMMOBILIER
23 QUAI JAYR
69009 LYON 9EME ARRONDISSEMENT
Tél : 0472291191
Votre conseiller pour visiter ce bien
Aurélie LEROY
Tél : 04.72.29.11.91
Tél mobile : 06 10 57 51 58
Contactez-nous via ce formulaire ou appelez-nous pour visiter ce bien
Ecoles, transports, sorties et commerces sur OULLINS (69600)
Oullins est une ville de 27 113 habitants. Côté immobilier, les habitations sont réparties en 20 % de maisons et 80 % d'appartements.


