maison de ville T4 A LOUER - VILLEURBANNE - 72.89 m2 - 984 € charges comprises par mois
Maison de ville T4 de 72.89m²+13.44m² habitable Secteur Villeurbanne République
Secteur Villeurbanne République - rue Songieu: Dans une rue calme à proximité du cour emile zola, des commerces et des transports (metro,bus),
Maison de ville de 72.89m² carrez et 13.44m² habitable sur trois niveaux avec trois chambres .
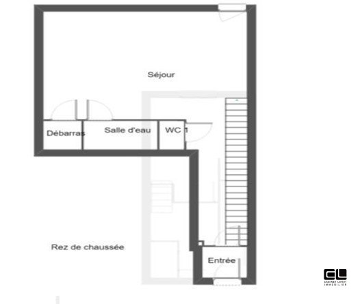
La maison se compose au premier niveau d'une entrée, d'une grande pièce de vie ouverte sur un coin cuisine, d'un débarras, d'une salle d'eau et d'un wc.
Au premier étage une chambre et un deuxième WC, enfin au dernier étage deux chambres sous pentes.
Merci de déposer votre dossier et celui de votre garant sur le lien clac :
Les informations sur les risques auxquels ce bien est exposé sont disponibles sur le site Géorisques : www.georisques.gouv.fr
Réf : 118
Disponibilité
immédiate
Adresse
6BIS RUE SONGIEU 69100 VILLEURBANNE, VILLEURBANNE
Caractéristiques
Aménagements
- construit en : 1900
- surface utile : 13.44 m2 env.
- cuisine : coin cuisine
- chauffage : individuel electrique
Informations financières
- loyer mensuel charges comprises : 984 €
- dont provision mensuelle des charges locatives : 15 € (régularisation annuelle)
- dépôt de garantie : 969 €
- honoraires charge locataire TTC : 956,31 €
- dont pour l'état des lieux : 220,85 €
Zone soumise à encadrement des loyers
Quelques surfaces plus en détail
Surfaces données à titre indicatif – Non contractuelles :
- Entree : 1.9 m2
- Sejour : 37.9 m2
- Wc : 1 m2
- Salle d'eau : 2.8 m2
- Debaras : 1.4 m2
- Degagement : 6 m2
- Chambre 1 : 11.9 m2 (utile : 0.6 m2)
- Wc : 1.3 m2
- Degagement : 1.3 m2
- Chambre 2 : 3.4 m2 (utile : 6.5 m2)
- Chambre 3 : 4 m2 (utile : 6.4 m2)
Voir quelques surfaces plus en détailImprimer la ficheVoir nos prestations et tarifs
Classe énergie et classe climat
Consommation énergetique
Emissions de Gaz à effet de serre
DPE ANCIENNE VERSION
En savoir plusClasse énergie et classe climat
Consommation énergetique
en kWhEP/m2.an
|
325
|
Emissions de Gaz à effet de serre
en kgeq CO2/m2.an
|
10
|
DPE ANCIENNE VERSION
Montant estimé des dépenses annuelles d'énergie
Les dépenses d'énergie sont estimées entre 1 430 € et 1 990 € par an selon l'année de référence .
Estimation de dépenses en fonction du logement et pour une utilisation standard sur 5 usages (chauffage, eau chaude sanitaire, climatisation, éclairage, auxiliaires).
L'agence
CABINET LEROY IMMOBILIER
23 QUAI JAYR
69009 LYON 9EME ARRONDISSEMENT
Tél : 0472291191
Votre conseiller pour visiter ce bien
Aurélie LEROY
Tél : 04.72.29.11.91
Tél mobile : 06 10 57 51 58
Contactez-nous via ce formulaire ou appelez-nous pour visiter ce bien
Ecoles, transports, sorties et commerces sur VILLEURBANNE (69100)
Adresse 6BIS RUE SONGIEU 69100 VILLEURBANNE, VILLEURBANNE
Villeurbanne est une ville de 156 928 habitants. Côté immobilier, les habitations sont réparties en 5 % de maisons et 95 % d'appartements.



